이마트에브리데이 입점 관련 안내 3. > 새소식

본문 바로가기
사이트 내 전체검색
언제나 즐거운 캠토의 새소식들

이마트에브리데이 입점 관련 안내 3.

작성일 2021.07.29

본문

이마트에브리데이 입점 가능 지역 입니다.

1.청주 모충동점.
2.청주 모충동점 매장 내 입점 가능 사이트.
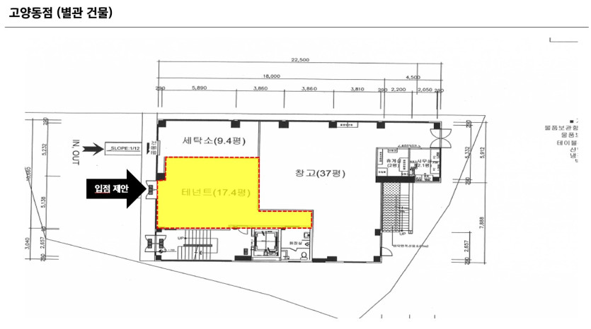
3. 경기도 고양동점.
4. 고양동점 매장 내 입점 가능 사이트.

댓글목록

등록된 댓글이 없습니다.

회원로그인

접속자집계

오늘
70
어제
214
최대
2,427
전체
367,976
  • (주)주안
  • 대표이사 김하람
  • 주소 대전광역시 동구 자양동 68-2번지
  • 사업자번호 305-86-07751
  • 대표전화 042-627-1275
  • 팩스 042-825-7059

Copyright (C) CAMTO TOAST ALL RIGHTS RESERVED.

그누보드5
Copyright © 소유하신 도메인. All rights reserved.